Total Environment Down by the Water - Project Image
Published

Total Environment Down by the Water

by Total Environment Homes

Adjacent to Jakkur Lake, Agrahara, Jakkur Hobli

1200 Units 17.50 Acres

Disclaimer : Project information displayed below is sourced from publicly available records (including RERA and developer websites) and is provided strictly for informational purposes. 1st-house.com is not affiliated with, authorized by, or representing any developer or promoter.

Project Overview

₹4.5 Cr - ₹13.4 Cr

Starting Price Range

Project Details
  • Type: Residential
  • Total Units: 1200
  • Total Area: 17.50 Acres
  • Towers: 6
  • Floors per Tower: 17
Timeline
  • Possession: May 2031
  • RERA Registration No (as per State RERA public records, Verify on State's RERA site): PRM/KA/RERA/1251/472/PR/090824/006967
According to developer-published material, the project includes


Total Environment Down by the Water is more than just a residential development – it's a testament to luxury living amidst nature's splendour.
Situated at the edge of the breathtaking Jakkur lake, the project boasts signature earth-sheltered homes with green roofs and private gardens.
Known as TE Down by the Water, it redefines upscale living with its innovative approach, ensuring a harmonious blend of nature and luxury living.
Every single home comes with a private terrace garden, giving apartment residents villa-like outdoor living.

Key Highlights
Adjacent to the serene Jakkur Lake
Signature earth-sheltered homes with green roofs
Private terrace garden for every home
24,000 sq.ft. signature clubhouse
17.5 Acres Land Area
Phase 1 - 602 Units, 3 Towers
Low-density community (around 35 units per acre)
G+16 Floors

Indicative Price Range (as reported in public sources)

3 BHK

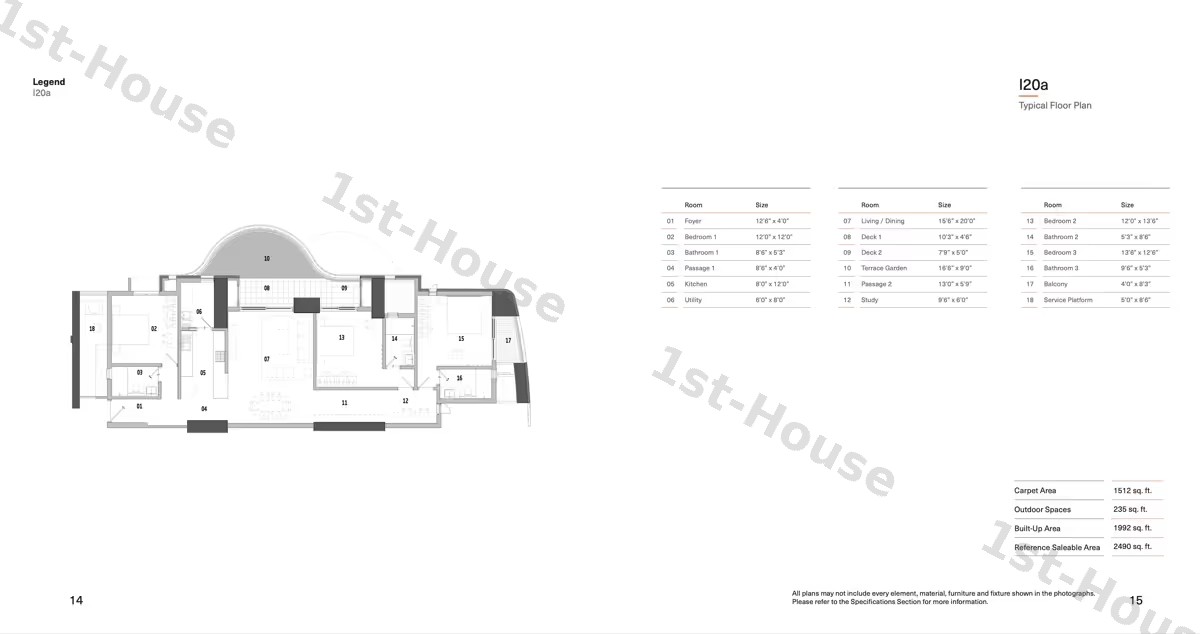
3 Bed Home + Study (I20)
20% Available
Carpet Area
1800.00 sq ft
Bedrooms
3
Bathrooms
3
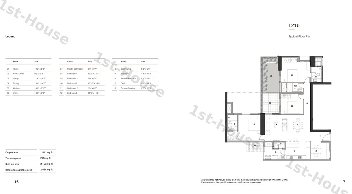
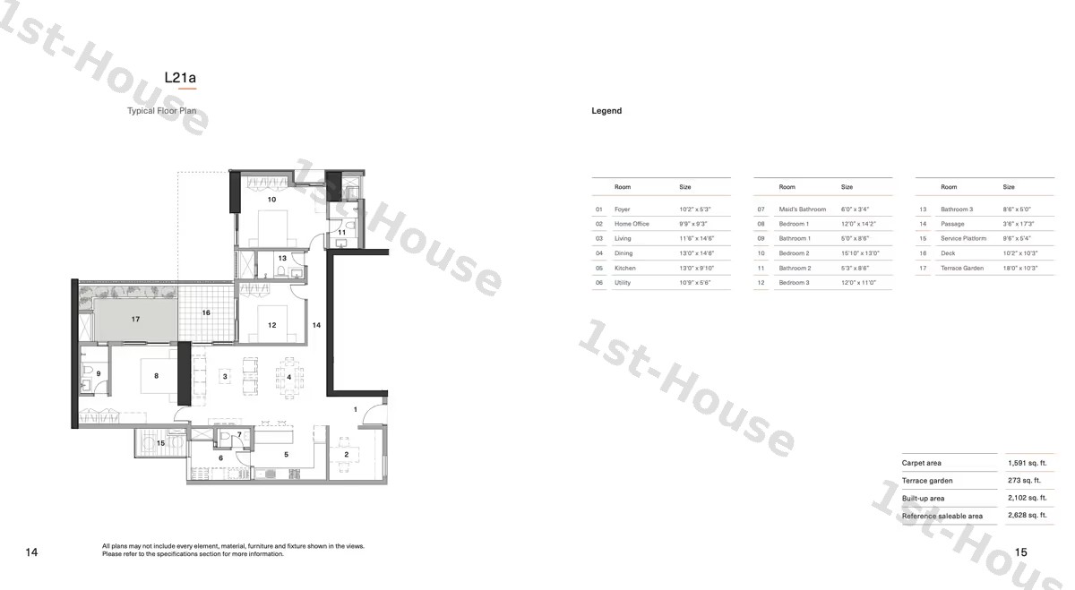
3 Bed Home + Home Office (L21)
20% Available
Carpet Area
1900.00 sq ft
Bedrooms
3
Bathrooms
3
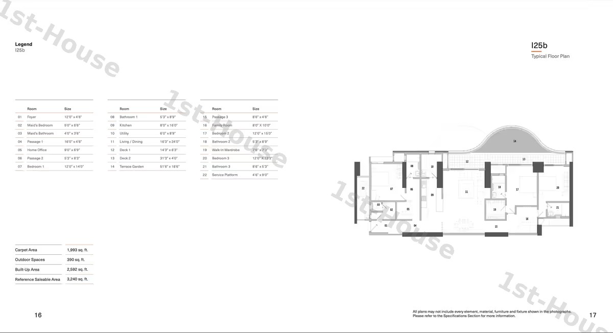
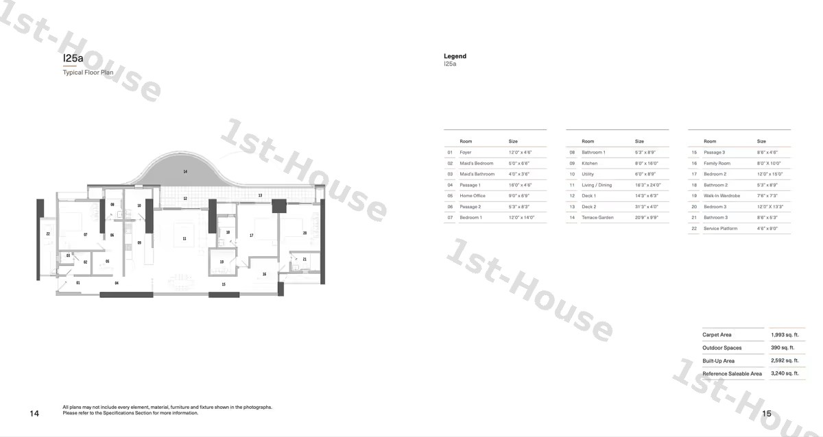
3 Bed Home + Maid Room + Office (I25)
27% Available
Carpet Area
2350.00 sq ft
Bedrooms
3
Bathrooms
4

4 BHK

4 Bed Home (I40)
15% Available
Carpet Area
3600.00 sq ft
Bedrooms
4
Bathrooms
4

Villa

4 Bed Villa Style (I50)
20% Available
Carpet Area
4700.00 sq ft
Bedrooms
4
Bathrooms
5

Amenities & Features

Swimming Pool
Jogging Track
Curated Parks
World-Class Gym
Games Room
Multi-Purpose Hall
Landscape Gardens
Cycling Track
Kids Pool
Party Halls
Yoga Deck
Sports Court
Tree Lane Avenue
Children's Play Area

Location & Connectivity

Address

Adjacent to Jakkur Lake, Agrahara, Jakkur Hobli

PIN Code: 560064

Important Disclaimer

Information provided is for general research purposes only. 1st-house.com does not guarantee accuracy and is not responsible for any decisions based on this information.

Please verify all details independently with the builder/owner before making any commitments.

Request General Information

Please enter your name.
Please enter a valid email address.
Please enter a valid phone number.

* This request is for general informational discussion only and is not forwarded to the developer.

Your information is secure and will not be shared.
Publicly Available Developer Contact (For Independent Verification)

Total Environment Homes

“Contact details are reproduced from publicly available sources. 1st-house.com does not facilitate communication and is not associated with the developer.”

Similar Projects

Excel Amber Meadows - Project Image
Excel Amber Meadows

Panathur, Bengaluru

View Details
Butterfly Avenue - Project Image
Butterfly Avenue

Panathur, Bengaluru

View Details
Salarpuria Sattva Serene Life - Project Image
Salarpuria Sattva Serene Life

Shettigere, Bengaluru

View Details
Sattva Aeropolis - Project Image
Sattva Aeropolis

North Bengaluru, Bengaluru

View Details